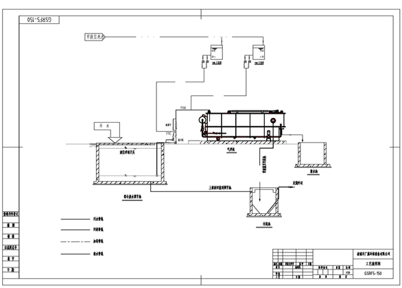
气浮一体化设备构造原理
气浮一体化设备构造原理:
经加药反应后的污水进入气浮的混合区,与释放后的溶气水混合接触,使絮凝体粘附在细微气泡上,然后进入气浮区。絮凝体在气浮力的作用下浮向水面形成浮渣,下层的清水经集水器流至清水池后,一部分回流作溶气使用,剩余清水通过溢流口流出。气浮池水面上的浮渣积聚到一定厚度以后,由刮沫机刮入气浮机污泥池后排出。


气浮一体化设备特点:
1、处理能力大、效率高、占地少。
2、工艺过程及设备构造简单,便于使用、维护。
3、能消除污泥膨胀。
4、气浮时向水中曝气,对去除水中的表面活性剂及臭味有明显的效果,同时由于曝气增加了水中的溶解氧,为后续处理提供了有利条件。
5、对低温、低浊、含藻类多的水源,采用气浮法可取得最好的效果。


气浮一体化设备安装:
1、设备安装前,必须夯实地基。并用混凝土砂浆垫高100-150mm。也可架空安装,但基础必须能承担设备运行时的重量。
2、设备就位后需调整水平。
3、设备需设清洗用下水道,可挖明渠,也可直接采用管道接至调节池,以便冲洗气浮池的水排出去。
4、污水进口与反应池之间的联接管道,要求越短越好,以免絮凝体在管道中被破坏。
5、清水出口可接通下水道排放,如需进入下道处理工序,可直接与下道处理设备相接。
6、污泥出口可接至污泥槽或污泥处理设备。
7、电器箱一般应 放置在扶梯侧面,环境应干净、清洁。

气浮一体化设备调试前,应做好以下准备工作:
1、要清洗水池内所有的赃物、杂物。
2、对水泵及空压机等需要润滑部位进行加油润滑。
3、接通电源,启动水泵,检查转向是否与箭头所标方向一致。用手动控制启动空压机,检查空压机运转是否正常,发现异常情况应及时查清原因。
4、按下刮沫机开关,使其向溶气系统一端行走。运行到头后在行程撞块作用下,刮沫机反向行走,直到污泥槽,行程撞块将刮板翻起,按下停止按钮,停止刮沫。


返回首页
电话
产品中心